Solingen
Solingen
Düsseldorf
Düsseldorf
Niederlande
Niederlande

Solingen

Düsseldorf

People shaking hands
Verkauf
People under a blanket
Vermietung

Vermietung

0212 264 11 44   Öffnet Montag um 9:00  

Weitere Bilder anzeigen

HELL UND FREUNDLICH IN HASTEN - INKL. EINBAUKÜCHE

Informationen

910 €

Vermarktungsart

Zu Vermieten

Zu Vermieten

Objektinformationen

Kaltmiete
660 €
Nebenkosten
250 €
Wohnfläche
76 m2
Energiebedarf
176 kWh/m²a

Anfrage

Datenschutz

Beschreibung

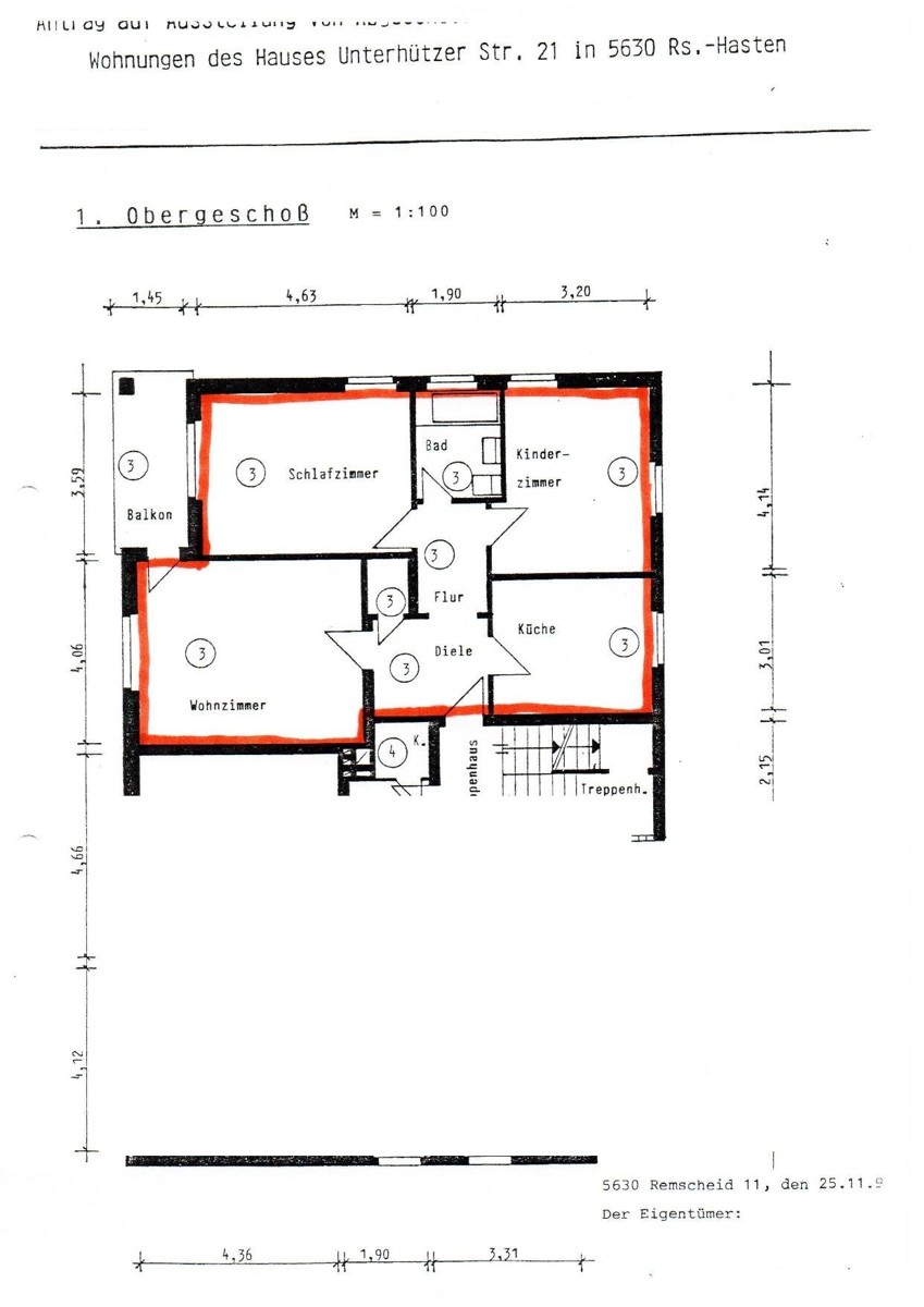
Diese helle und freundliche Wohnung im 1. OG eines gepflegten Mehrfamilienhauses ist ab dem 01.02.2026 für Sie bezugsfertig. Die Wohnfläche von 76,03 m² verteilt sich auf drei Zimmer. Wenn Sie die Wohnung betreten, gelangen Sie durch den geräumigen Flur in alle Räume. Der Wohnbereich ist großzügig geschnitten, so dass sich Ihnen die Möglichkeit bietet, einen separaten Essbereich zu integrieren. Von Wohnzimmer aus gelangen Sie auf den Balkon, welcher nach Südwesten ausgerichtet ist. Die geräumige Küche ist mit einem großformatigen Fliesenspiegel versehen. Eine moderne Einbauküche ist vorhanden. Hier haben Sie reichlich Platz, um Ihre Küchenideen zu verwirklichen. Das helle Schlafzimmer und das Kinderzimmer runden das Wohnangebot perfekt ab. Das Fensterbad ist modern mit einer Wanne, weißen Wandfliesen sowie einem Handtuchtrockner ausgestattet.

Ausstattung

Die Ausstattung im Überblick

  • Parkettboden im Wohnzimmer
  • Balkon mit schönem Grünblick
  • Fensterbad mit Handtuchtrockner und Wanne
  • Kellerraum
  • Waschküche mit Trockenräumen
  • Unitiy-Media-Anschluss
  • ruhige Wohnlage
  • Abstellraum