Solingen
Solingen
Düsseldorf
Düsseldorf
Niederlande
Niederlande

Solingen

Düsseldorf

People shaking hands
Verkauf
People under a blanket
Vermietung

Vermietung

0212 264 11 44   Öffnet Montag um 9:00  

Weitere Bilder anzeigen

GROSSZÜGIG WOHNEN in KÖLN SÜD

Informationen

2.400 €

Vermarktungsart

Zu Vermieten

Zu Vermieten

Objektinformationen

Kaltmiete
1.950 €
Nebenkosten
300 €
Wohnfläche
107 m2
Energielabel
C 75-99 kWh/m²a

Anfrage

Datenschutz

Beschreibung

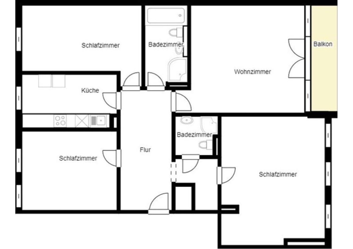
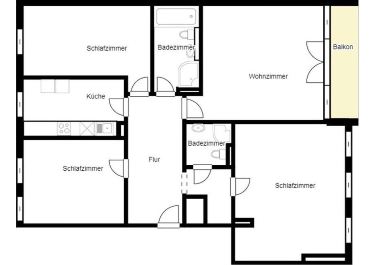
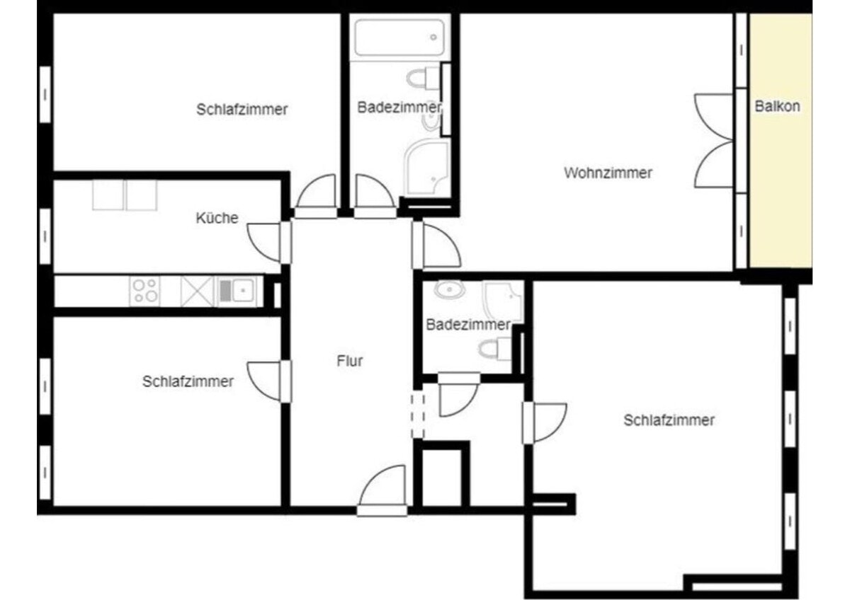
Ein Wohntraum mit Seltenheitswert: Großzügige 4-Zimmer-Wohnung inklusive eigenem Garagenstellplatz in bester Innenstadtlage. Wir präsentieren Ihnen eine herausragende Immobilie in der historischen und zentral gelegenen Großen Witschgasse im Stadtteil Köln-Altstadt/Süd. Diese Wohnung kombiniert die Atmosphäre des lebendigen, historisch gewachsenen Viertels mit dem Komfort und der Geräumigkeit einer modernen Familienwohnung – ergänzt um das äußerst seltene Gut eines eigenen Garagenstellplatzes im Zentrum. Die durchdachte Aufteilung mit vier Zimmern bietet maximale Flexibilität für Familien, Paare mit Homeoffice-Anspruch oder als großzügiges Repräsentationsdomizil. Zwei vollwertige Bäder erhöhen den Wohnkomfort erheblich und verhindern morgendliche Engpässe. Lichtdurchflutet und offen gestaltet, bildet der Wohnbereich das Zentrum des Familienlebens. Hochwertige Parkett-Bodenbeläge und stilvolle Innentüren unterstreichen die gehobene Anmutung. Genießen Sie entspannte Stunden auf Ihrem privaten Balkon – ein wertvoller Außenbereich mitten im Geschehen der Innenstadt. Eine separate Küche bietet Raum für kulinarische Kreationen, während die einladende Diele für einen repräsentativen Eingangsbereich sorgt.

Ausstattung

Die Ausstattung im Überblick

  • 4 Zimmer, Küche mit Einbauküche, Diele, 2 Bäder, Balkon
  • Garagenstellplatz in der Doppelgarage direkt am Haus
  • Gas-Zentralheizung
  • Einbauküche mit hochwertigen Geräten von Miele, Neff und Siemens
  • Waschmaschine vorhanden
  • Kellerabteil
  • Garten mit Sandkasten hinter dem Haus
  • frei zum 01.03.2026
  • WG nicht möglich!