Solingen
Solingen
Düsseldorf
Düsseldorf
Niederlande
Niederlande

Solingen

Düsseldorf

People shaking hands
Verkauf
People under a blanket
Vermietung

Vermietung

0212 264 11 44   Öffnet heute um 9:00  

Weitere Bilder anzeigen

- 1-2-FAMILIENHAUS MIT SEPARATEM ARBEITSBEREICH UND sep. ZUGANG

Informationen

439.000 €

Vermarktungsart

Zu Verkaufen

Zu Verkaufen

Objektinformationen

Kaufpreis
439.000 €
Courtage
2,99
Wohnfläche
211 m2

Anfrage

Datenschutz

Beschreibung

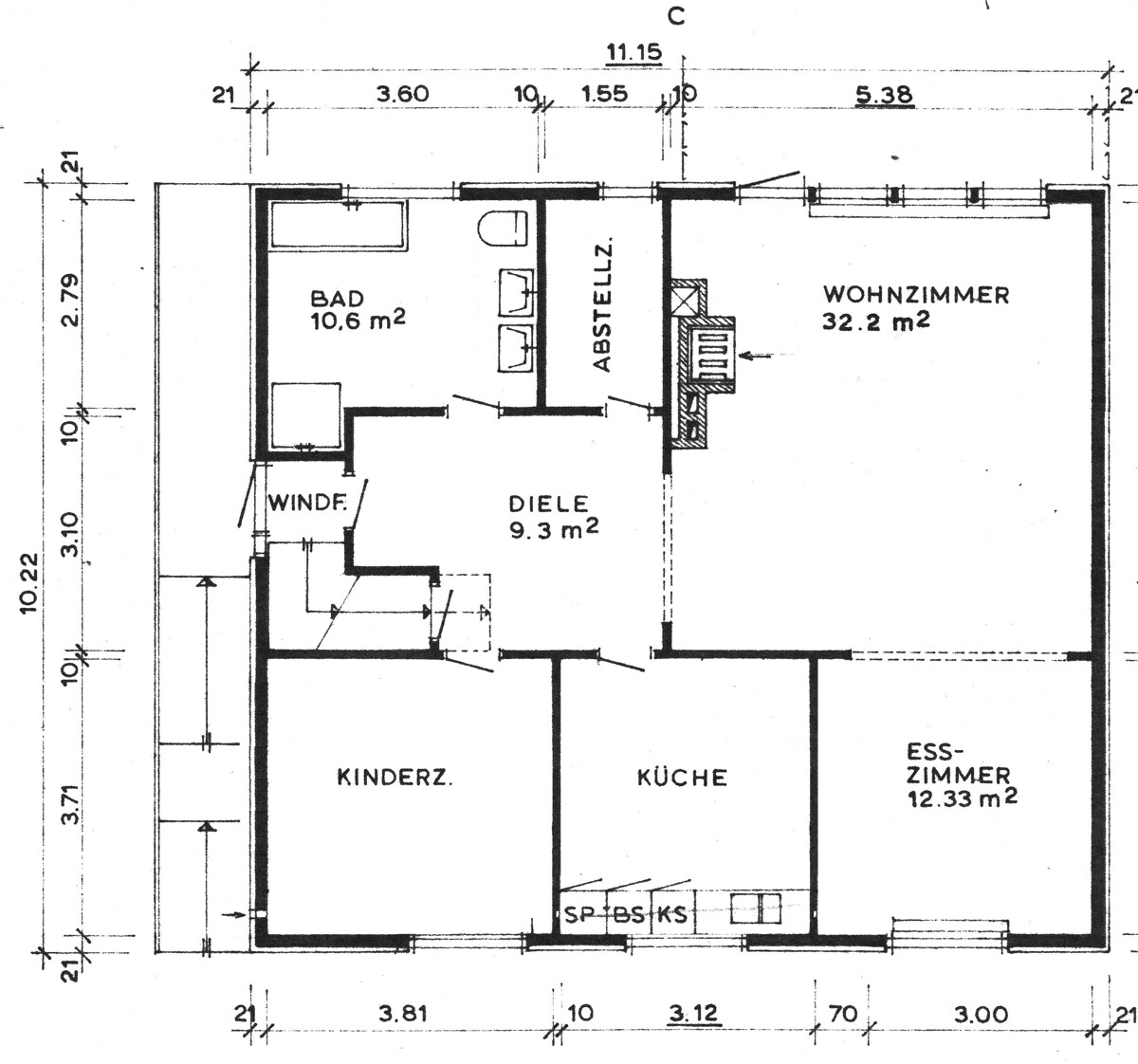
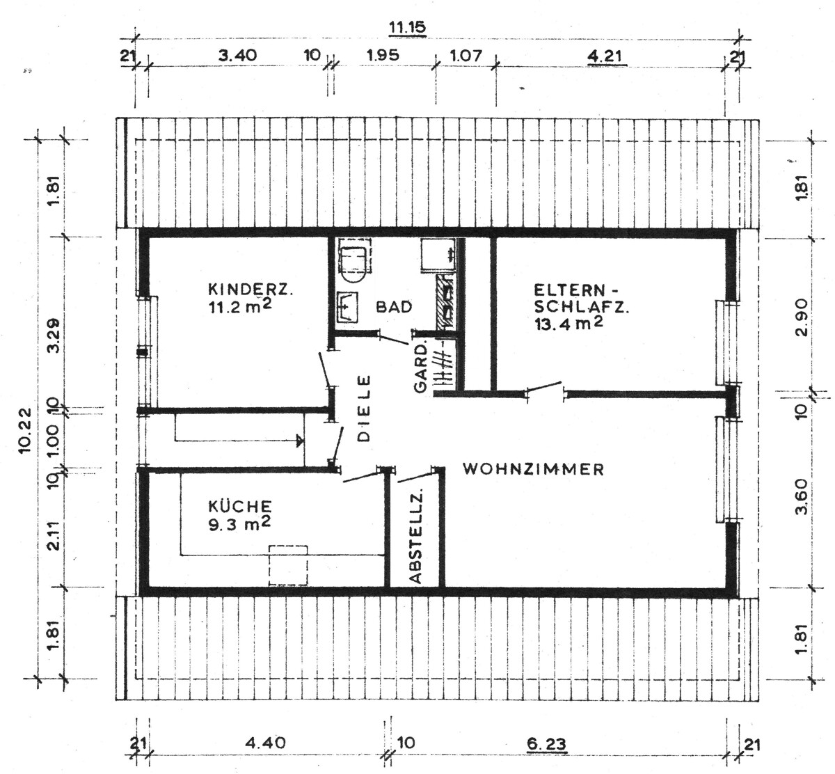
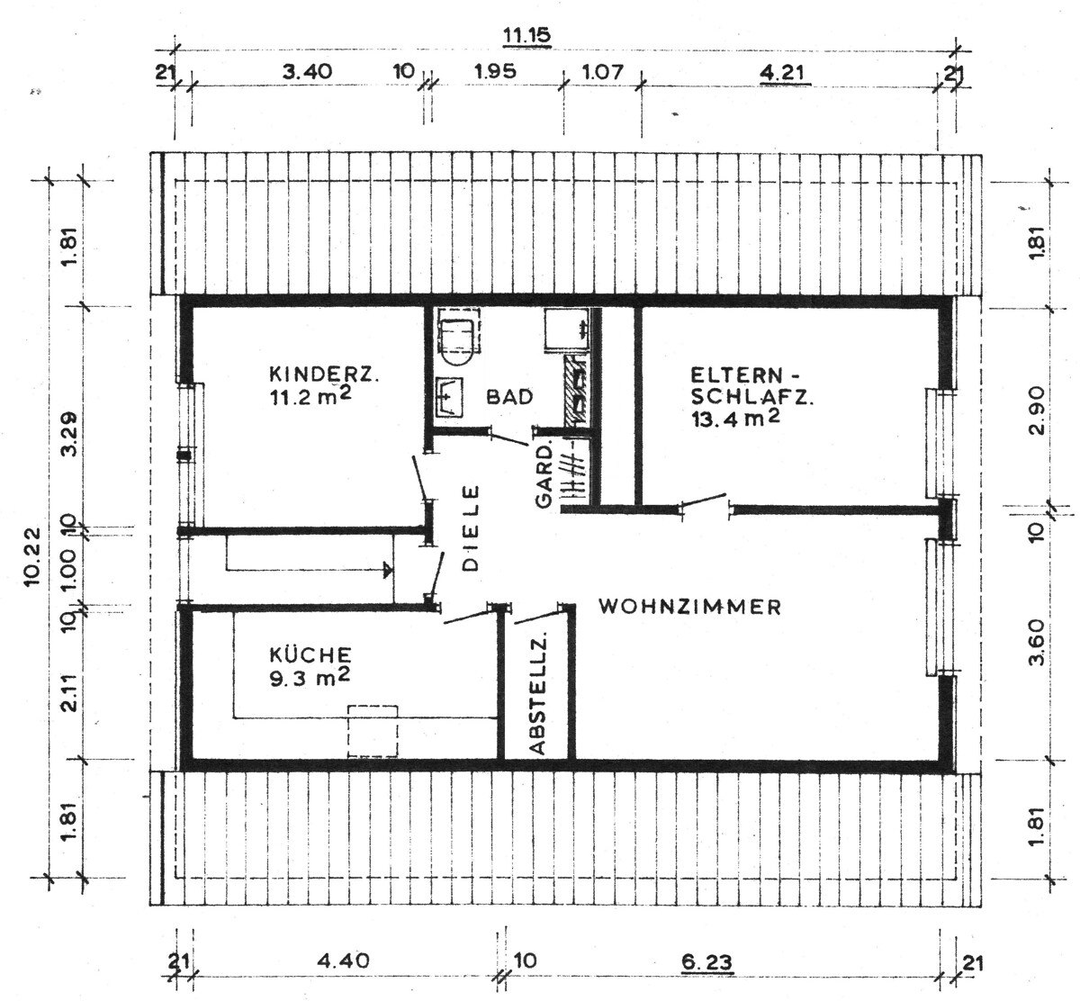
Dieses gepflegte Ein- bis Zweifamilienhaus in ruhiger Wohnlage von Remscheid-Nord. Es wurde im Jahr 1972 erbaut und bietet mit einer Wohnfläche von ca. 211 m² vielfältige Nutzungsmöglichkeiten. Die Immobilie eignet sich sowohl für Familien mit Platzbedarf als auch für Mehrgenerationenwohnen oder eine Kombination aus Wohnen und Arbeiten, da ein separater Bereich mit eigenem Zugang vorhanden ist. Das rund 1.015 m² große Grundstück ist ein besonderes Highlight. Der großzügige, liebevoll angelegte Garten in Südlage bietet viel Raum für Erholung, Spiel und individuelle Gestaltung. Ob entspannte Stunden im Grünen, gesellige Abende mit Familie und Freunden oder die Verwirklichung eigener Gartenideen – hier stehen Ihnen zahlreiche Möglichkeiten offen. Eine großzügige Terrasse ergänzt den Außenbereich und schafft zusätzlichen Wohnkomfort. Auch die Parksituation ist komfortabel gelöst: Zum Haus gehören eine Garage mit direktem Zugang ins Gebäude sowie weitere PKW-Stellplätze auf dem Grundstück. Im Inneren überzeugt die Immobilie durch eine durchdachte Raumaufteilung und ein angenehmes Wohnambiente. Beheizt wird das Haus über eine Gas-Zentralheizung. Besonders hervorzuheben ist die moderne, hochwertig ausgestattete Küche, die bereits im Kaufpreis enthalten ist. Sie bietet ideale Voraussetzungen für gemeinsames Kochen und geselliges Beisammensein. Insgesamt vereint diese Immobilie eine ruhige Wohnlage mit guter Verkehrsanbindung, großzügige Flächen im Innen- und Außenbereich sowie ein hohes Maß an Flexibilität in der Nutzung. Ein Zuhause, das sowohl Raum für Familienleben als auch für individuelle Lebens- und Arbeitskonzepte bietet.

Ausstattung

Die Ausstattung im Überblick

  • EG 126,19 qm Wohnfläche - 2 Zimmer, Küche, Diele, Bad, Wirtschaftsraum
  • 1. OG 63,55 qm - 3 Zimmer, Küche, Diele, Bad
  • UG 56,15 qm - 2 Kellerräume, Sauna, Flur, Arbeitszimmer mit separatem Eingang
  • Gas-Zentralheizung
  • Wasserwärmetauscher von 2012
  • Außentreppe mit Edelstahlgeländer von 2024
  • Innentreppe neu
  • Fenster Südseite 2020
  • Gartenzaunanlage von 2018
  • Küche von 2015
  • Kaminofen im Wohnzimmer
  • Hauptbad EG 2018
  • Bad Untergeschoss von 2008
  • Sauna
  • Parkettböden Diele und Kinderzimmer von 2019
  • Hausfassade von 2025
  • Vordach Haustüre 2024
  • Außentüren von 2022
  • Wohnungstüren von 2022
  • Einliegerwohnung Ausbau 2017
  • Garagen-Sektionaltor von 2022
  • Abwasserkanal von 2012
  • Kabel-/Sat-/TV-Anschluss nicht vorhanden; die Vorbereitung für einen Glasfaseranschluss ist
  • jedoch bereits abgeschlossen
  • Besichtigungen sind ab Mitte Januar 2026 möglich !