NEUBAU - LUXURIÖSER BUNGALOW- LUZ DE CALA RATJADA
Informationen
650.000 €
Vermarktungsart
Zu Verkaufen
Zu VerkaufenObjektinformationen
- Kaufpreis
- 650.000 €
- Wohnfläche
- 78 m2
Beschreibung
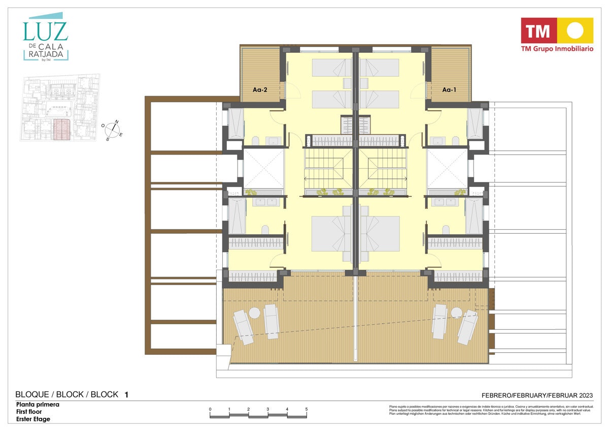
„Luz de Cala Ratjada“ ist ein luxuriöses Wohnprojekt mit 26 Wohneinheiten im Nordosten von Mallorca, im beliebten Cala Ratjada (Gemeinde Capdepera), in einer einzigartigen Umgebung, umgeben von wunderschönen Buchten mit türkisfarbenem Wasser und nur 600 Meter vom Hafen von Cala Ratjada entfernt. Die Residenz verfügt über verschiedene Haustypen, die sich an Ihre Bedürfnisse anpassen: Doppelhaushälften mit 3 Schlafzimmern und 3 Bädern, Doppelhaushälften mit Keller mit 3 Schlafzimmern und 4 Bädern und Bungalows mit 2 Schlafzimmern und 2 Bädern. Darüber hinaus wird die Residenz über wunderschöne Gemeinschaftsbereiche mit Swimmingpool, zwei Whirlpools und einem großen Pool-Strandbereich verfügen. Alle Wohneinheiten verfügen über einen Parkplatz und die Vorinstallation einer Ladestation für Elektrofahrzeuge. Die Fertigstellung der Residenz ist für den Sommer 2024 avisiert.
Bei diesem Angebot handelt es sich um einen Bungalow mit 2 Schlafräumen und 2 Bädern!
Bitte kontaktieren Sie uns gerne und wir senden Ihnen weitere Infos und die aktuellen Verfügbarkeiten!
Bei den Innenfotos handelt es sich um 3D-Ansichten zur Veranschaulichung der Qualitäten!
Gemeinschaftsanlage: Die Residenz wird über einen wundervollen 100 m² Gemeinschafts-Swimming-Pool, zwei Whirlpools, schöne Gartenanlagen und eine herrlichen Terrassenbereich mit Duschen verfügen.
Ausstattung
Die Ausstattung im Überblick
- Doppelt verglaste Kunststoff-Fenster
- Sicherheitseingangstüre-
- Einbauschränke
- Fußbodenheizung und Klimaanlage warm/kalt (Wärmepumpe)
- SAT-TV- und Internet (Glasfaser)
- Außenbeleuchtung, Video-Eingangssystem
- voll ausgestattete Küche mit dahinter liegendem Hauswirtschaftsbereich
- Garten mit automatischer Bewässerung oder Dachterrasse
- Möbelpaket auf Wunsch 38000,- Euro
- Die Apartments im Obergeschoss verfügen über eine 55 m2 Dachterrasse mit Dusche, Grillbereich und einer Vorinstallation für einen Jacuzzi. Die Apartments im Untergeschoss haben einen privaten Gartenanteil.
- Die Villen verfügen über eine privaten überdachten Parkplatz mit Elektroladestation, einige Villen verfügen über einen Tiefgaragenstellplatz und die Apartments werden mit 1 oder 2 Außenparkplätzen verkauft. Jede Villa hat Zugang über eine automatisches Zufahrtstor. Ein privater kleiner Pool ist bei den Villen gegen Aufpreis möglich.
Lage
Die Lage im Überblick
Kaufnebenkosten
Geschätzte Kaufnebenkosten für dieses Objekt – als Orientierungshilfe für Ihre Finanzierungsplanung.
- Grunderwerbsteuer (5,50 %)
- 35.750 €
- Notarkosten (1,50 %)
- 9.750 €
- Grundbuchkosten (0,50 %)
- 3.250 €
- Maklerprovision Käufer (3,57 %)
- 23.205 €
- Summe Kaufnebenkosten (11,07 %)
- 71.955 €
- Gesamtaufwand inkl. Kaufpreis
- 721.955 €
Grunderwerbsteuer geschätzt anhand der Postleitzahl. Notar- und Grundbuchkosten als typische Richtwerte; tatsächliche GNotKG-Gebühren sind degressiv. Maklerprovision als Standardwert 3,57 % angesetzt. Detaillierte Erläuterung im Kaufnebenkosten-Artikel.