EXKLUSIVE NEUBAUWOHNUNG COLONIA SANT JORDI
Informationen
560.000 €
Vermarktungsart
Zu Verkaufen
Zu VerkaufenObjektinformationen
- Kaufpreis
- 560.000 €
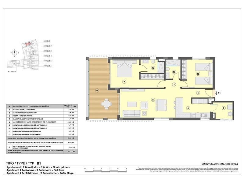
- Wohnfläche
- 98 m2
Beschreibung
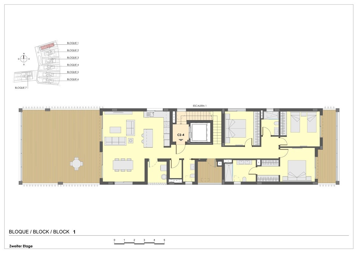
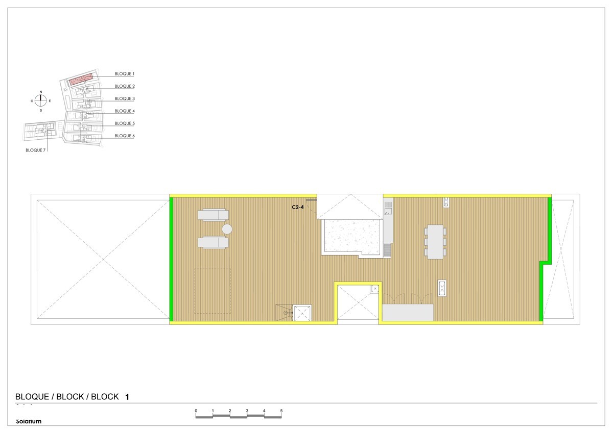
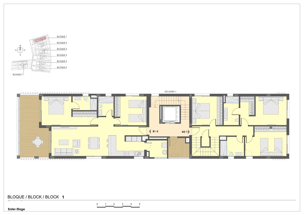
Diese neue Residenz in Colonia de Sant Jordi im Süden von Mallorca fügt sich mit einem einzigartigen architektonischen Design in seine Umgebung ein, und das nur ca. 100 Meter vom Meer entfernt. Die Anlage besteht aus 28 Wohnungen, die sich auf zwei Phasen verteilen: 14 Wohnungen, aufgeteilt in Erdgeschosswohnungen mit Garten oder Wohnungen im ersten Stock mit großen Terrassen, 6 Penthäuser mit Dachterrasse, 2 Duplex-Penthäuser mit Dachterrasse und 6 Duplexwohnungen mit Garten. Ein Projekt, in dem Sie leben und das mediterrane Klima genießen können. Die Gemeinschaftsbereiche der Phase 1 umfassen einen Swimmingpool, einen Whirlpool, Sonnenliegen, einen Strandpool und Innenwege, die in der gleichen Wohnanlage angelegt sind. In Phase 2 haben die Maisonette- und Penthouse-Wohnungen die Möglichkeit, einen privaten Swimmingpool im Garten, einen Jacuzzi oder einen individuellen Panoramapool auf der Sonnenterrasse zu nutzen. Alle Wohnungen werden über einen Parkplatz und einen Abstellraum verfügen.
In dieser Wohnanlage können Sie zwischen verschiedenen Wohnungstypen mit Ost-, West- und Südwestausrichtung wählen:
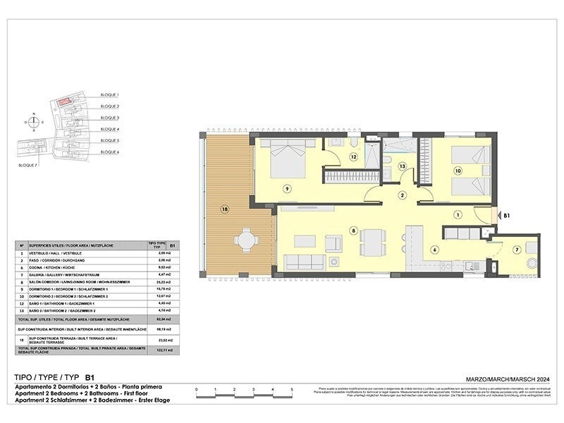
-Wohnungen mit Garten oder Terrasse mit 2 oder 3 Schlafzimmern und 2 oder 3 Bädern.
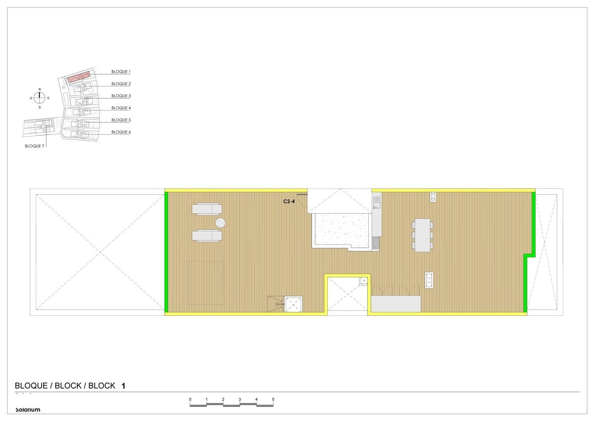
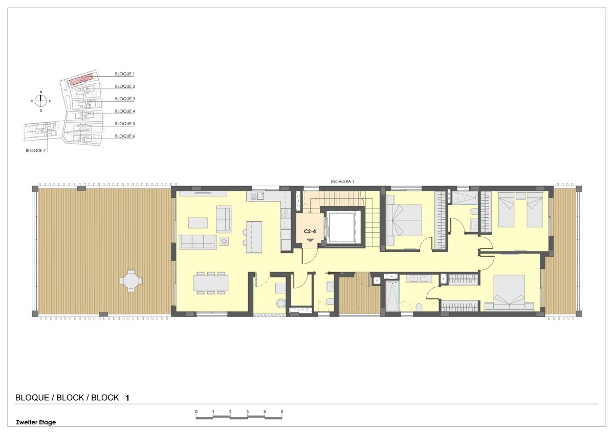
-Penthäuser mit Solarium mit 3 Schlafzimmern und 2 Bädern.
-Duplex mit Garten oder Solarium mit 3 Schlafzimmern und 2 Bädern.
Alle sind sehr hell mit großen Fenstern und perfekter Querlüftung, um ein Maximum an Sonnenstunden und natürlichem Licht zu nutzen. Die Wohnungen verfügen über die besten Bau- und Ausstattungsqualitäten, wie z.B. zum Wohnzimmer hin offene Küchen mit Quarz-Arbeitsplatten, Klimaanlage, elektrische Fußbodenheizung in den Bädern und motorisierte Jalousien, um nur einige zu nennen.
Ausstattung
Die Ausstattung im Überblick
- Klimaanlage warm/kalt (Wärmepumpe)
- Elektrische Fußbodenheizung in den Bädern
- 2-fach verglaste Fenster
- Einbauküche mit Arbeitsplatten Quarz – ohne Elektrogeräte
- Einbauschränke
- motorisierte Jalousien an Fenstern und Balkonen
- Bodenbelag aus technischer SPC-Platte im Format 180×30, Nachahmung von Naturholz,
- Fliesenfußboden (Feinsteinzeug) in Bädern und Küche
- verstärkte Sicherheitszugangstür
- Belüftungssystem im ganzen Haus
- TV-Anschlüsse im Wohnzimmer, in den Schlafzimmern und auf der Terrasse
- elektronische Türsprechanlage
- Vorinstallation für das Aufladen von Elektroautos in allen Kellerräumen aller Blöcke
- Warmwasserbereitung erfolgt über aerothermische Wärmepumpe
- Glasfaseranschluss (Internet)
- Fahrstuhl
- Private Dachterrasse (Penthäuser) – mit Vorinstallation für Whirlpool
- Gemeinschafts-Swimming-Pool
- Gemeinschaftsgarten
- Tiefgaragenstellplatz
- Abstellraum
- Optionen kostenlos (Wahlmöglichkeit) :
- Farbe der Silestone-Arbeitsplatte
- Farbe für die verschiedenen Räume der Immobilie.
- Bodenbelag in der gesamten Wohnung.
- Fliesenbelag in Küche und Badezimmern.
- Küchenmöbel.
- Innentischlerei (Türen und Schränke).
- Optionen gegen Aufpreis (teilweise innerhalb vorgegebener Fristen)
- Fussbodenheizung im ganzen Apartment
- privater Swimming-Pool
- Optionen für die Garagenstellplätze
Lage
Die Lage im Überblick
Kaufnebenkosten
Geschätzte Kaufnebenkosten für dieses Objekt – als Orientierungshilfe für Ihre Finanzierungsplanung.
- Grunderwerbsteuer (5,50 %)
- 30.800 €
- Notarkosten (1,50 %)
- 8.400 €
- Grundbuchkosten (0,50 %)
- 2.800 €
- Maklerprovision Käufer (3,57 %)
- 19.992 €
- Summe Kaufnebenkosten (11,07 %)
- 61.992 €
- Gesamtaufwand inkl. Kaufpreis
- 621.992 €
Grunderwerbsteuer geschätzt anhand der Postleitzahl. Notar- und Grundbuchkosten als typische Richtwerte; tatsächliche GNotKG-Gebühren sind degressiv. Maklerprovision als Standardwert 3,57 % angesetzt. Detaillierte Erläuterung im Kaufnebenkosten-Artikel.