Solingen
Solingen
Düsseldorf
Düsseldorf
Niederlande
Niederlande

Solingen

Düsseldorf

People shaking hands
Verkauf
People under a blanket
Vermietung

Vermietung

0212 264 11 44   Öffnet morgen um 9:00  

Weitere Bilder anzeigen

EIGENTUMSWOHNUNG MIT GARTEN, BALKON UND VIEL CHARME

Informationen

299.000 €

Vermarktungsart

Zu Verkaufen

Zu Verkaufen

Objektinformationen

Kaufpreis
299.000 €
Courtage
3,57 %
Wohnfläche
105 m2
Energielabel
C 75-99 kWh/m²a

Anfrage

Datenschutz

Beschreibung

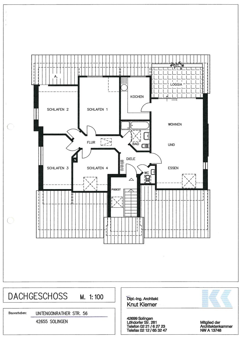
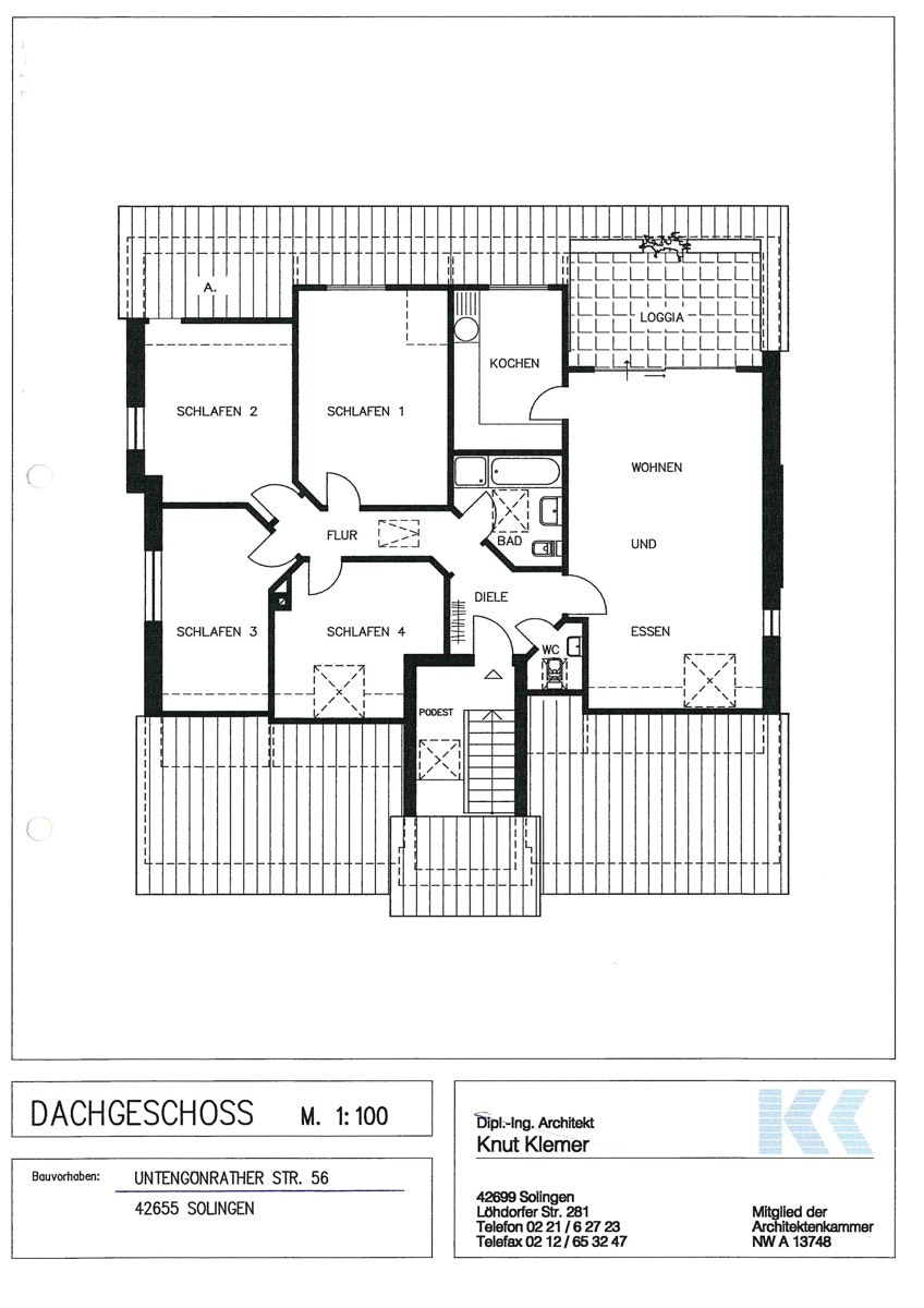
Willkommen in Solingen-Untengönrath, wo wir Ihnen eine attraktive Dachgeschosswohnung aus dem Baujahr 1997 präsentieren. Mit einer Wohnfläche von ca. 105 m² bietet diese Immobilie ein gemütliches und gut geschnittenes Zuhause, ideal für Familien. In puncto Ausstattung bietet diese Wohnung neben einem praktischen Grundriss auch eine zugeordnete Garage, die den täglichen Komfort wesentlich erhöht. Von dem großen Balkon haben Sie einen herrlichen Grünblick, ein separater Garten mit Sondernutzungsrecht, der vom Keller aus begehbar ist, rundet dieses schöne Angebot ab. Die ruhige und dennoch zentrale Lage ermöglicht sowohl schnelle Wege in die Natur als auch gute Anbindungen an das städtische Verkehrsnetz. Diese Wohnung stellt sowohl für Kapitalanleger, die eine wertbeständige und renditestarke Investition suchen, als auch für Selbstnutzer, die ein eigenes, behagliches Nest gestalten möchten, eine ausgezeichnete Gelegenheit dar. Entdecken Sie die Möglichkeit, in einem lebenswerten Umfeld eine Immobilie zu besitzen, die sowohl durch ihre Lage als auch durch ihre Ausstattung überzeugt. Wir laden Sie herzlich ein, sich selbst ein Bild von diesem kleinen Paradies zu machen und stehen Ihnen für weitere Informationen und eine persönliche Besichtigung gerne zur Verfügung.

Ausstattung

Die Ausstattung im Überblick

  • Baujahr 1997
  • 5-Parteien-Haus
  • Wohnfläche ca. 105 qm
  • 5 Zimmer, Küche, Diele, Bad mit Wanne und Dusche, Gäste-WC
  • große Loggia
  • separater Gartenanteil
  • Garage
  • Gas-Zentralheizung
  • Laminatböden
  • z.Zt. vermietet