GEPFLEGTES MEHRGENERATIONENHAUS
Informationen
429.000 €
Vermarktungsart
Zu Verkaufen
Zu VerkaufenObjektinformationen
- Kaufpreis
- 429.000 €
- Courtage
- 3,57 %
- Wohnfläche
- 210 m2
- Energiebedarf
- 211 kWh/m²a
- Energielabel
- G 200-249 kWh/m²a
Beschreibung
Dieses großzügige und liebevoll modernisierte Mehrfamilienhaus in Solingen-Mitte bietet auf ca. 397 m² Grundstücksfläche viel Platz und Wohnkomfort. Das dreistöckige Gebäude umfasst 6 Räume und vier Badezimmer, die sich z,Zt, auf insgesamt zwei Wohneinheiten verteilen – ideal für Familien oder Kapitalanleger.
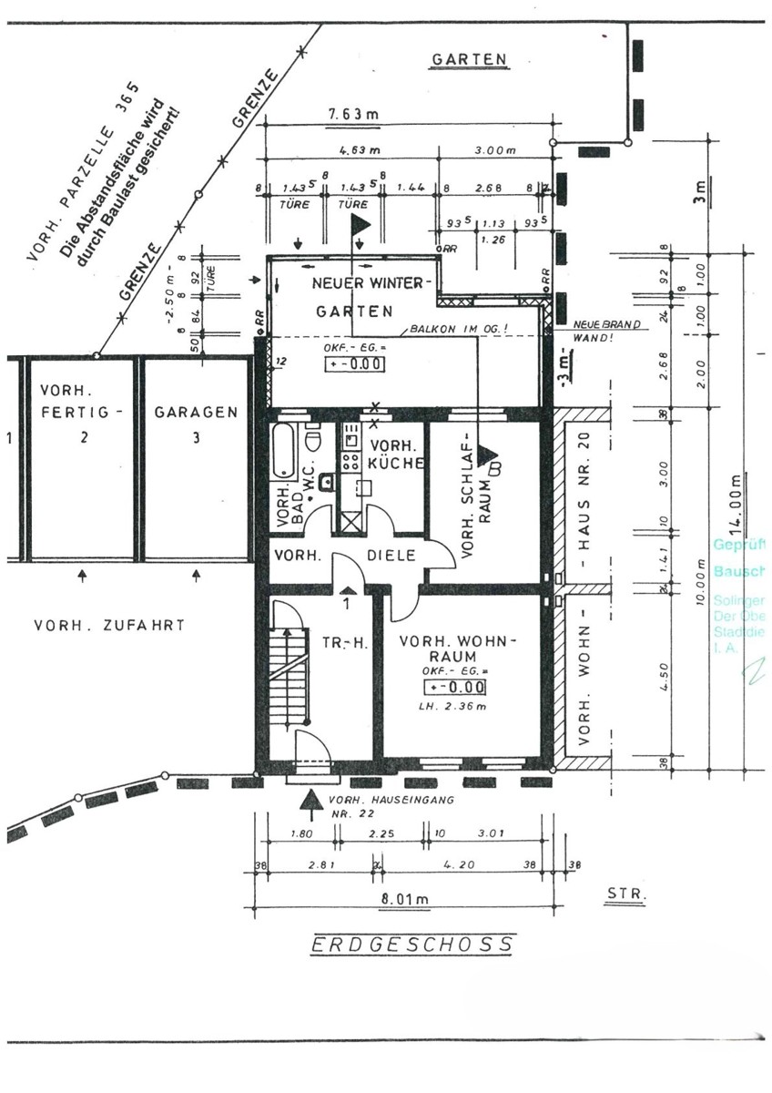
Ausstattung und Raumaufteilung: Das Erdgeschoss bietet auf ca. 72 m² Wohnfläche alles, was Sie sich für ein gemütliches Zuhause wünschen: Ein großes Wohnzimmer, Wintergarten, Wohnküche, Bad und Flur. Das Wohnzimmer lässt sich leicht in zwei Räume unterteilen. Vom Wohnbereich gelangen Sie auf die ca. 16 m² große, überdachte Terrasse, die zum Entspannen und Genießen einlädt. Von hier aus betreten Sie auch den pflegeleichten und sehr schön angelegten Garten.
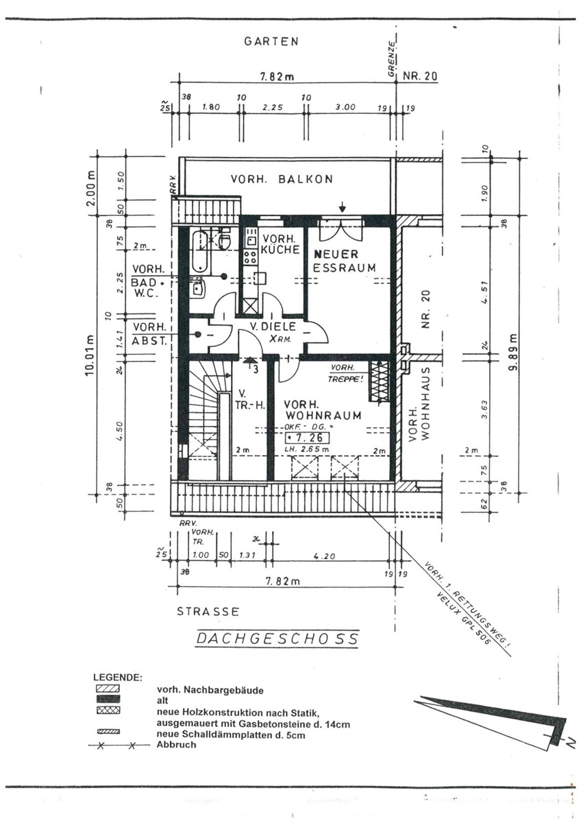
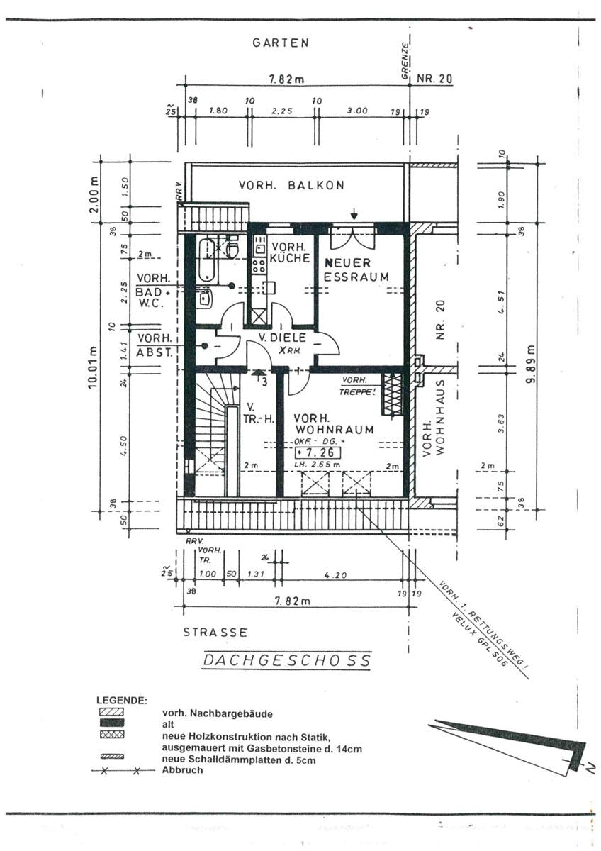
Im Obergeschoss erwartet Sie auf ca. 53 m² ein ähnlicher Grundriss mit 2 Räumen, Küche, Bad und Flur. Hier sorgt ein nach Süden ausgerichteter Balkon für sonnige Stunden. Die Maisonette-Dachgeschosswohnung verfügt über ca. 76 m² Wohnfläche und bietet eine sehr gemütliche Wohnatmosphäre. Hier finden Sie drei Räume, Küche, Diele und Bad. Alle drei Wohnungen sind individuell zugänglich.
Garten und Außenbereich: Ein Highlight des Hauses ist der gepflegte Gartenbereich, in dem ein kleiner Geräteschuppen für Gartenwerkzeuge und ein Gartenhaus zur Verfügung stehen. Vier Garagen bieten genug Platz für die Fahrzeuge aller Bewohner.
Modernisierungen und Potential: Das Gebäude wurde umfassend modernisiert. Jede Wohneinheit verfügt über eine sep. Heizung. Das Haus präsentiert sich iin einem gepflegten Zustand.
Dieses Objekt vereint modernen Wohnkomfort, viel Stauraum und vielfältige Nutzungsmöglichkeiten – eine lohnende Investition für Eigennutzer und Kapitalanleger gleichermaßen.
Ausstattung
Die Ausstattung im Überblick
- Baujahr 1915
- 3 x Gas-Etagenheizungen
- EG: Wohnküche, Wohnzimmer, Wintergarten, Bad, Flur (kann leicht in eine 2-Raum-Wohnung umgebaut werden)
- 1. OG: 2 Zimmer, Küche, Diele, Bad, Balkon
- 2. und 3. OG: 3 Zimmer, Küche, Diele, Bad, Balkon
- Vollkeller
- 4 Garagen
- Elektrik von 2023
- Dacherneuerung 1987
- 3 Einbauküchen inklusive
- Jalousien überall
- Wintergarten mit elektrischer Beschattung
- Kaminofen im Wintergarten
- Rohre von 1987
- die Immobilie kann komplett geräumt zeitnah übergeben werden !
Lage
Die Lage im Überblick
Kaufnebenkosten
Geschätzte Kaufnebenkosten für dieses Objekt – als Orientierungshilfe für Ihre Finanzierungsplanung.
- Grunderwerbsteuer (6,50 %)
- 27.885 €
- Notarkosten (1,50 %)
- 6.435 €
- Grundbuchkosten (0,50 %)
- 2.145 €
- Maklerprovision Käufer (3,57 %)
- 15.315 €
- Summe Kaufnebenkosten (12,07 %)
- 51.780 €
- Gesamtaufwand inkl. Kaufpreis
- 480.780 €
Grunderwerbsteuer geschätzt anhand der Postleitzahl. Notar- und Grundbuchkosten als typische Richtwerte; tatsächliche GNotKG-Gebühren sind degressiv. Maklerprovision aus den Objektdaten übernommen. Detaillierte Erläuterung im Kaufnebenkosten-Artikel.