GEPLANTER NEUBAU - DOPPELHAUSHÄLFTE IN RUHIGER SACKGASSENLAGE
Informationen
529.000 €
Vermarktungsart
Zu Verkaufen
Zu VerkaufenObjektinformationen
- Kaufpreis
- 529.000 €
- Wohnfläche
- 159 m2
Beschreibung
Architektur, die den Horizont öffnet. Diese moderne Doppelhaushälfte wurde speziell für die anspruchsvolle Topografie dieses Grundstücks entworfen. Durch die geschickte Hangbauweise entstehen lichtdurchflutete Ebenen.
Während sich das Haus zur Straßenseite hin diskret und sicher präsentiert, öffnet es sich zur Talseite mit bodentiefen Glasfronten. Hier verschmelzen Innen- und Außenraum: Genießen Sie den Sonnenuntergang auf Ihrer großzügigen Terrasse.
Nachhaltige Massivbauweise: Stein auf Stein gebaut für optimales Raumklima und exzellenten Schallschutz zum Nachbarn.
High-End Technik: Effiziente Luft-Wasser-Wärmepumpe, Fußbodenheizung mit Einzelraumsteuerung und Vorbereitung für eine Photovoltaik-Anlage.
Panorama-Wohnen: Offener Wohn-Ess-Bereich mit 55 m² und direktem Terrassenzugang.
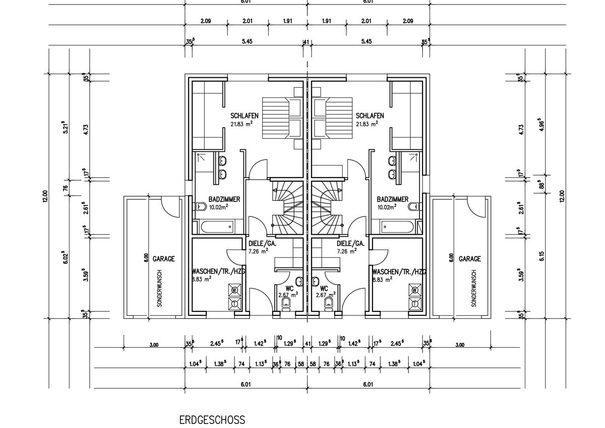
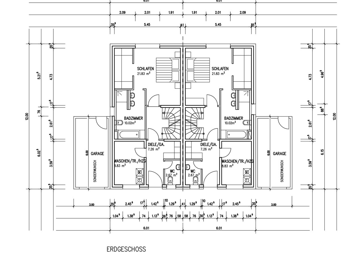
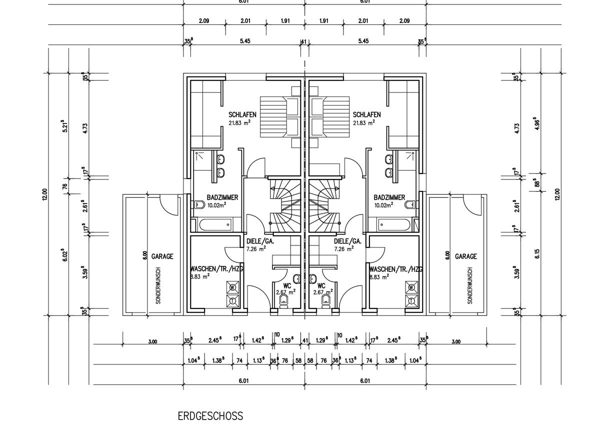
Eingangsebene (Strassenniveau): Diele, Gäste-WC, Schlafzimmer mit Bad en Suite, Hauswirtschaftsraum
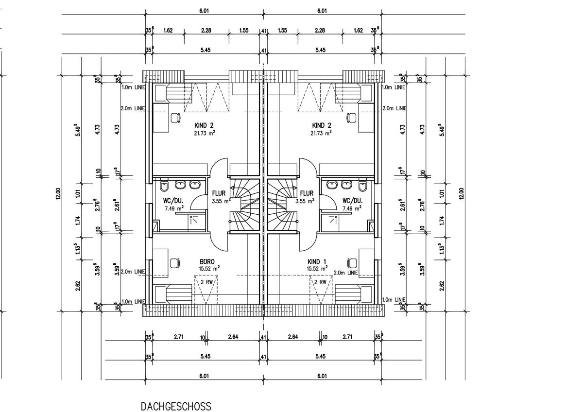
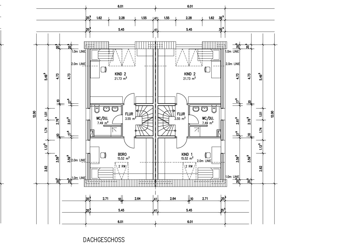
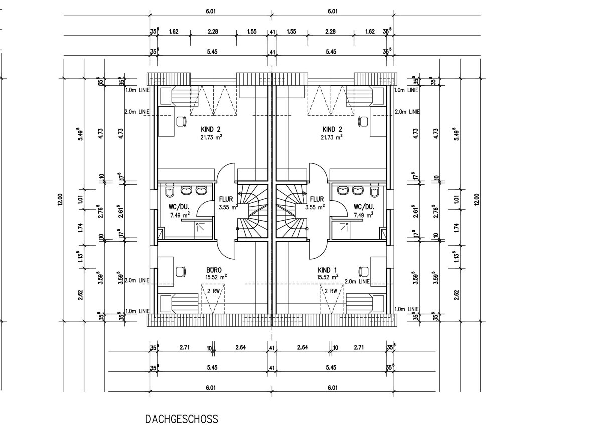
Obergeschoss: zwei Schlafzimmer mit Fensterbad
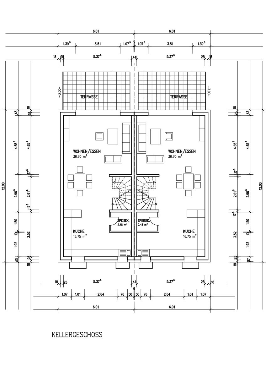
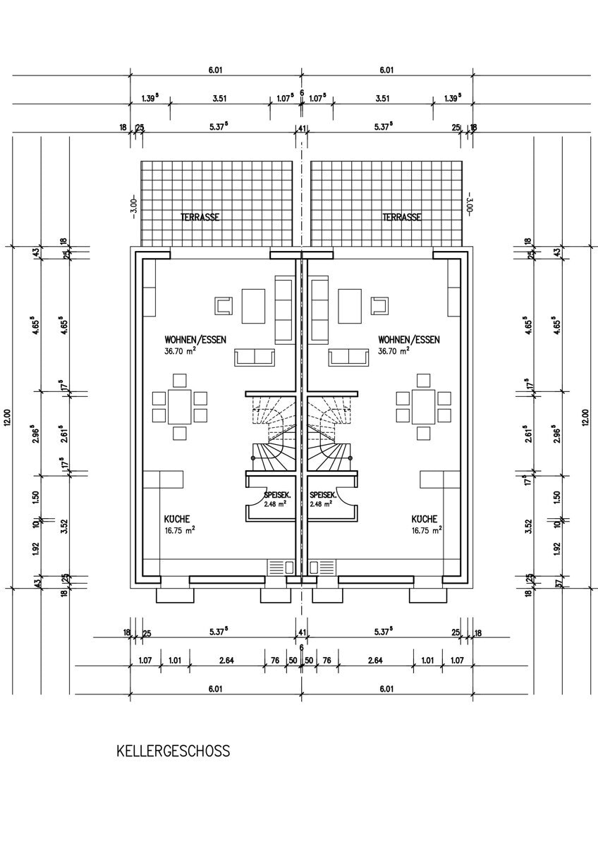
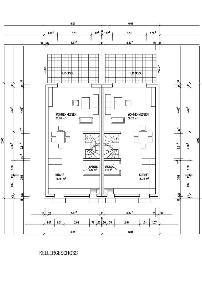
Untergeschoss: Wohn-, Esszimmer mit angrenzender Küche und Speisekammer sowie Ausgang auf die Terrasse
In der Anlage finden Sie das detaillierte Exposé sowie die Grundrisse. Gerne laden wir Sie zu einem persönlichen Gespräch oder einer Begehung des Grundstücks ein, damit Sie sich selbst von der Lage und der Aussicht überzeugen können.
Für Rückfragen stehen wir Ihnen telefonisch oder persönlich gerne zur Verfügung.
Ausstattung
Die Ausstattung im Überblick
- ca 216 qm überschaubares und pflegeleichtes Grundstück
- ca. 159 qm Wohnfläche
- Garage möglich 8500 Euro
- Terrasse und Hausanschlüsse sowie die Fliesen in den Bädern sind im Preis enthalten
- Malerarbeiten, Oberböden und Außenanlagen in Eigenleistung
- Fertigstellung nach Baugenehmigung ca. 8 Monate
- Luft-, Wärmepumpe mit Fußbodenheizung
- 3-fach isolierte Kunststoff-Fenster
Lage
Die Lage im Überblick
Kaufnebenkosten
Geschätzte Kaufnebenkosten für dieses Objekt – als Orientierungshilfe für Ihre Finanzierungsplanung.
- Grunderwerbsteuer (6,50 %)
- 34.385 €
- Notarkosten (1,50 %)
- 7.935 €
- Grundbuchkosten (0,50 %)
- 2.645 €
- Maklerprovision Käufer (3,57 %)
- 18.885 €
- Summe Kaufnebenkosten (12,07 %)
- 63.850 €
- Gesamtaufwand inkl. Kaufpreis
- 592.850 €
Grunderwerbsteuer geschätzt anhand der Postleitzahl. Notar- und Grundbuchkosten als typische Richtwerte; tatsächliche GNotKG-Gebühren sind degressiv. Maklerprovision als Standardwert 3,57 % angesetzt. Detaillierte Erläuterung im Kaufnebenkosten-Artikel.